Return to CastlePark

Morven

Plot 124 - 5 bed detached home with double garage (APPROX. 282SQM)

£675,000
castle@ajcscotland.com Get directions Call 07884 738152
Make an enquiry
Morven

Floor Plans

  • Ground Floor
  • First Floor
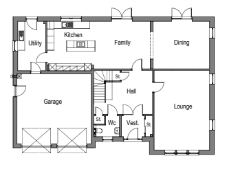
Ground Floor Plan
Room metres
Lounge 4.76 x 6.85
Dining 4.83 x 4.07
Kitchen/Family 8.86 x 4.23 **
Utility Room 2.40 x 4.23
WC 2.22 x 1.80 **
Garage
** Maximum measurements
*** Excludes door recess
First Floor Plan
Room metres
Bedroom 1 6.29 x 4.27 *
Bedroom 2 4.76 x 4.00 ***
Bedroom 3 3.69 x 3.37 ***
Bedroom 4 3.56 x 3.37 ***
Bedroom 5 3.56 x 2.75
Bathroom 2.52 x 3.79 *
En-suite 1 3.50 x 2.67
En-suite 2 2.20 x 3.10 *
Study area 2.77 x 3.10
* Excludes dormer recess
** Maximum measurements
*** Excludes door recess

Specifications

  • Kitchens
  • Windows & Doors
  • Internal
  • Bathrooms & Ensuites
  • Heating and Hot Water
  • Electrical
  • Garages
  • External Specification
  • NHBC
Kitchens

Interior and exterior images are used for illustration purposes in some instances

You may choose from a wide selection of high quality German kitchens together with co-ordinated worktops. All kitchens have integrated appliances including stainless steel oven, hob, extractor, dishwasher and fridge freezer. Feature lighting. 1 ½ bowl stainless steel sink to kitchen (Single stainless steel sink to utility). Kitchens are available for tailoring to suit customer requirements where possible.

Windows & Doors

Interior and exterior images are used for illustration purposes in some instances

Scandinavian composite timber main entrance and rear doorsets complete with chrome/steel door furniture and multi point security locks. High performance timber double glazed windows.

Internal

Interior and exterior images are used for illustration purposes in some instances

High quality, solid core oak veneered doors fitted with stylish brushed satin/chrome door handles. Most bedrooms have built in wardrobes (see individual house layouts for further information). Quality ironmongery throughout. Decoration: Internal walls and ceilings finished in white emulsion paint with white satinwood paint to joiner finishings.

Bathrooms & Ensuites

Interior and exterior images are used for illustration purposes in some instances

Quality Roca white sanitary and brassware including thermostatically controlled showers. You may choose from a pre-selected range of complementary quality tiles.

Heating and Hot Water

Interior and exterior images are used for illustration purposes in some instances

LPG gas fired central heating system with thermostatically controlled radiators throughout. A hot water cylinder provides hot water with backup electrical immersion heater. Chrome towel rails to all bathrooms, en-suites and cloakrooms.

Electrical

Interior and exterior images are used for illustration purposes in some instances

Installation includes switches, sockets, telephone and television points. Door chime to front door. External lighting to entrance and rear doors. (See individual house layouts and specifications for further information).

Garages

Interior and exterior images are used for illustration purposes in some instances

Garages will have up and over garage doors, internal light and power sockets.

External Specification

Interior and exterior images are used for illustration purposes in some instances

Turf to be provided to front garden. Paved slabs will provide a pathway to both the front and rear door. Concrete pavers to driveway with concrete edging. The external fabric of the properties features natural granite and timber linings. Rotary drier.

NHBC

Interior and exterior images are used for illustration purposes in some instances

All our homes are registered under the National House Building Council.

Factor Fees

£500.00

Find out more

Siteplan & Prices

Make an enquiry about this home

CastlePark

Showhome and Sales Centre open by appointment only.

Call us on:

07884 738152
Lyndsey Robertson

Lyndsey Robertson

Sales Manager